Adapter sans déraciner : l’accessibilité PMR dans les maisons existantes en Bretagne
Habiter longtemps, habiter autrement
En Bretagne, et plus largement en Ille-et-Vilaine, notamment à Rennes, Cesson-Sévigné, Liffré ou Mordelles, de nombreux propriétaires sont aujourd’hui confrontés à une réalité simple :
leur maison n’est plus adaptée à leur mobilité… mais ils ne souhaitent pas la quitter.
Et c’est légitime.
Une maison n'est pas seulement un lieu fonctionnel. C'est un cadre de vie, un repère construit au fil des années, des habitudes et des souvenirs.
Alors une question essentielle se pose :
faut-il partir… ou transformer ?
Dans la majorité des cas, la meilleure réponse consiste à adapter plutôt qu'à partir. C'est précisément dans cette réflexion que l'intervention d'un architecte à Rennes prend tout son sens.
Des maisons existantes souvent peu adaptées à la mobilité
Le tissu pavillonnaire breton, notamment autour de Rennes, présente des caractéristiques récurrentes :
- Maisons sur sous-sol ou demi-niveau
- Accès par escaliers extérieurs
- Entrées surélevées
- Organisation verticale des espaces
Ces éléments, parfaitement adaptés à leur époque, deviennent aujourd’hui des obstacles majeurs pour les personnes à mobilité réduite.
Pour autant, ces maisons ne sont pas inadaptables. Elles nécessitent d'être réinterprétées avec intelligence et une réponse sur mesure. C'est tout l'enjeu d'un projet de rénovation de maison à Rennes.
Rendre accessible sans dénaturer
L’accessibilité ne se limite pas à une réponse technique ou réglementaire.
Elle engage une réflexion plus profonde, à la fois architecturale, culturelle et humaine.
Adapter une maison existante, c’est :
- Respecter son écriture et son identité
- Préserver son rapport au paysage
- Maintenir les habitudes de vie
L’objectif n’est pas de transformer brutalement, mais d’accompagner en douceur.
Une accessibilité réussie est une accessibilité invisible, évidente et naturelle.
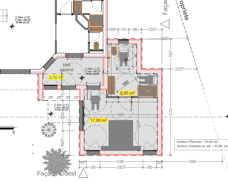
Liffré : une transformation discrète, mais décisive
Le projet réalisé à Liffré (Ille-et-Vilaine) illustre parfaitement cette approche.
Une contrainte initiale forte
La maison présentait plusieurs difficultés :
- Accès principal inaccessible (marches, dénivelé)
- Organisation intérieure peu adaptée
- Salle d’eau inappropriée
Comme souvent dans ce type de maison, les contraintes ne se limitaient pas à un seul point bloquant. C'est l'ensemble du parcours de vie dans le logement qui devrait être repensé.

Une réponse architecturale globale
Plutôt qu’une intervention ponctuelle, le projet propose une transformation complète :
- Création d’une extension de plain-pied, en continuité avec l’existant
- Mise en place d’un cheminement extérieur progressif, intégré au jardin
- Reconfiguration des accès, sans rupture de niveau
- Réalisation d’une salle d’eau PMR confortable et fonctionnelle
Ce type de mission demande une réflexion complète sur les usages. Un accompagnement de projet à Rennes permet justement de penser le projet dans sa globalité, depuis les besoins quotidiens jusqu'aux choix d'aménagement.
L’architecture devient ici un véritable outil de continuité de vie.


Une intervention presque invisible, mais déterminante
Depuis la rue, la maison conserve son identité.
Mais dans l’usage, tout change :
- Plus de fluidité
- Plus d’autonomie
- Plus de sérénité au quotidien
C’est toute la subtilité de ces interventions :
transformer sans altérer.


Adapter plutôt que reconstruire
Ces projets posent une question fondamentale :
faut-il continuer à construire du neuf, ou apprendre à transformer intelligemment l’existant ?
En Bretagne, la réponse s’impose :
- Le foncier est contraint
- Les tissus pavillonnaires sont déjà constitués
- Les habitants sont profondément attachés à leur lieu de vie
L’adaptabilité devient une démarche durable et responsable.
Rennes et sa métropole : un territoire en mutation
Le bassin rennais — Rennes, Cesson-Sévigné, Liffré, Mordelles — constitue un terrain particulièrement propice à ces transformations :
- Vieillissement progressif de la population
- Forte présence de maisons individuelles des années 70 à 90
- Besoin croissant d’autonomie à domicile
L’architecte y joue un rôle essentiel :
accompagner les évolutions de la vie, sans rupture brutale.
L’accessibilité PMR comme projet de vie
Adapter une maison aux besoins PMR, ce n’est pas simplement répondre à une norme.
C’est :
- Permettre de rester chez soi
- Préserver un équilibre de vie
- Maintenir un lien au territoire
C’est faire de l’architecture un acte profondément humain.
Questions fréquentes sur l’adaptation PMR
Quel est le coût pour adapter une maison aux normes PMR ?
Le coût dépend de plusieurs facteurs : accès extérieur, modification des niveaux, création d’une salle d’eau adaptée ou extension.
Chaque projet étant unique, une étude personnalisée est indispensable.
À titre indicatif, prévoir entre 2 200 € et 3 500 € / m² pour une extension adaptée PMR.
Peut-on adapter une maison ancienne en Bretagne ?
Oui, la majorité des maisons existantes peuvent être adaptées avec une approche architecturale adaptée.
Faut-il une autorisation pour créer une rampe ou une extension ?
Oui, selon la nature des travaux envisagés, une déclaration préalable ou un permis peut être nécessaire. Être accompagné par un architecte pour permis de construire à Rennes permet de sécuriser cette étape et de structurer le projet dès le départ.
Parlons de votre projet
Vous souhaitez adapter votre maison pour améliorer votre confort et votre autonomie ?
Atelier Kreizenn vous accompagne dans votre projet d'accessibilité PMR et de transformation de maison existante. En tant qu'architecte à Rennes, l'agence conçoit des réponse sur mesure, pensées pour durer et s'intégrer naturellement à l'existant.
✔ Étude personnalisée
✔ Accompagnement complet
✔ Solutions sur mesure
Atelier Kreizenn
Architecte basé à Cesson-Sévigné, j’accompagne les projets d’adaptation et de transformation de maisons existantes en Bretagne.
Vous avez un projet ? Échangeons ensemble.
Plus de la rubrique :
Aménager & rénover















